Villa a schiera in vendita

Cologne, Via Ponte Fabbro
€ 289.000
4 locali 4 locali
178 Mq 178 Mq
2 bagni 2 bagni

Villa a schiera in vendita

Cologne, Via Ponte Fabbro

Descrizione annuncio

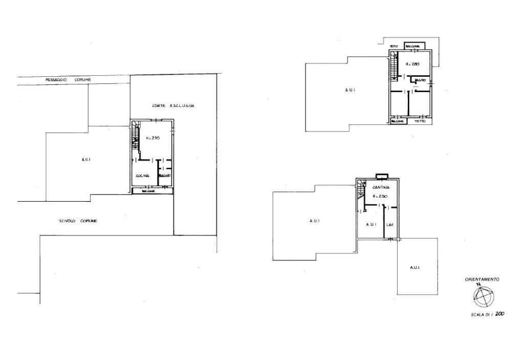
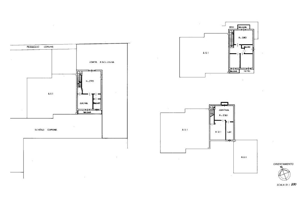
Nel comune di Cologne, proponiamo in vendita villa a schiera di testa, ideale per chi cerca spazio e comfort in una posizione tranquilla.

L'immobile,si sviluppa su più livelli con giardino esclusivo.

Al piano terra, un ampio soggiorno,cucina separata con affaccio sul balcone privato, antibagno e bagno di servizio.

La zona notte comprende una camera matrimoniale con balcone vista Monte Orfano, camera matrimoniale, camera singola con balcone e bagno finestrato con vasca.

Accendondo tramite scala interna nell'interrato troviamo una comoda taverna con camino funzionante, lavanderia e sotto scale utilizzato come ripostiglio.

Completano la proprietà un box doppio e mpio giardino esclusivo un'oasi di tranquillità, ideale per godere delle belle giornate.

Una soluzione abitativa che coniuga spazio, praticità e una posizione strategica con vista panoramica.

L'immobile non necessita lavori di ristrutturazione ma di modernizzazione. Assenza di spese condominiali.

Mostra tutto

Nelle vicinanze

Trasporto pubblico Trasporto pubblico
stazione di Cologne
stazione di Cologne
400 m
Scuole Scuole
Scuola Secondaria di 1° grado "A. Mazzotti" - I.C. Monte Orfano
540 m
Scuola Primaria
760 m
Supermercati Supermercati
Despar
700 m
Bar Bar
Bar
860 m
900
2,7 Km
Goblin's Pub
2,7 Km
Ristoranti Ristoranti
MEGA PIZZERIA
1,2 Km
Quadra
1,8 Km
Cappuccini
2,0 Km
Trattoria Sole (Mingardi)
2,8 Km
Genuisì
3,0 Km
Mostra tutto

Caratteristiche

Rif.:
61124018
Piano:
Su più livelli di 1
Totale piani:
1
Box:
2
Balconi:
3
Camere da letto:
3
Mostra tutto
Prezzo Prezzo
€ 289.000
Rata mutuo Rata mutuo
€ 1.364 / mese
Proponi il tuo prezzoProponi il tuo prezzo
Immobile valutato con T·Valuta

Classe Energetica

G
G
G
G
G
G
G
G
G
Anno di costruzione:
1993
Riscaldamento:
Autonomo
Tipo impianto:
A radiatori
Tipo alimentazione:
Metano

Ti interessa visionare l'immobile?

Fissa un appuntamento  Fissa un appuntamento

Richiedi informazioni

Clicca su Leggi per aprire l'informativa
* Questi campi sono obbligatori

Calcola il tuo mutuo

Semplice e senza impegno
Anticipo

( % )
Mutuo

( % )

pochi semplici passi

inserisci i tuoi dati
Questionario completato
Grazie per aver richiesto un appuntamento senza impegno con un nostro Consulente del Credito e Assicurativo.

Hai inserito correttamente tutti i dati necessari e a breve riceverai una e-mail con un link da convalidare per inviare i tuoi dati.
Affiliato
Soluzione Casa Srl
Via Ponte Fabbro, 82 25033 Cologne (BS)

Il nostro staff


  • Moreno Ferro
    Affiliato

  • Jessica Goffi
    Coordinatrice

  • Gianluca Peqini
    Collaboratore

  • Selene Ravelli
    Collaboratrice

  • Luca Sanna
    Collaboratore
Via Ponte Fabbro, 82 25033 Cologne (BS)
Zona: Coccaglio-Cologne
Mostra su mappa
Affiliato
Soluzione Casa Srl
Via Ponte Fabbro, 82 25033 Cologne (BS)

2025 Tecnocasa Franchising S.p.A. - P. IVA 08365160152 - Via Monte Bianco 60/A 20089 Rozzano (MI). Ogni agenzia ha un proprio titolare ed è autonoma. Privacy policy | Policy utilizzo | Cookie policy