Casa indipendente in vendita

Cologne, Via Ponte Fabbro
€ 295.000
5 locali 5 locali
650 Mq 650 Mq
1 bagno 1 bagno

Casa indipendente in vendita

Cologne, Via Ponte Fabbro

Descrizione annuncio

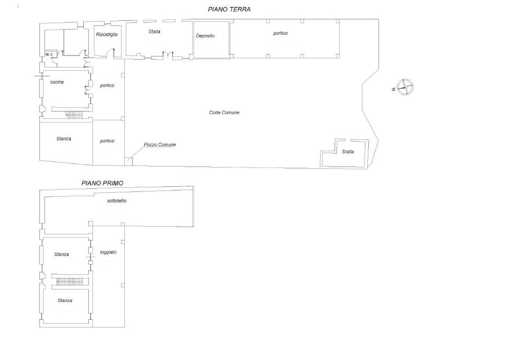
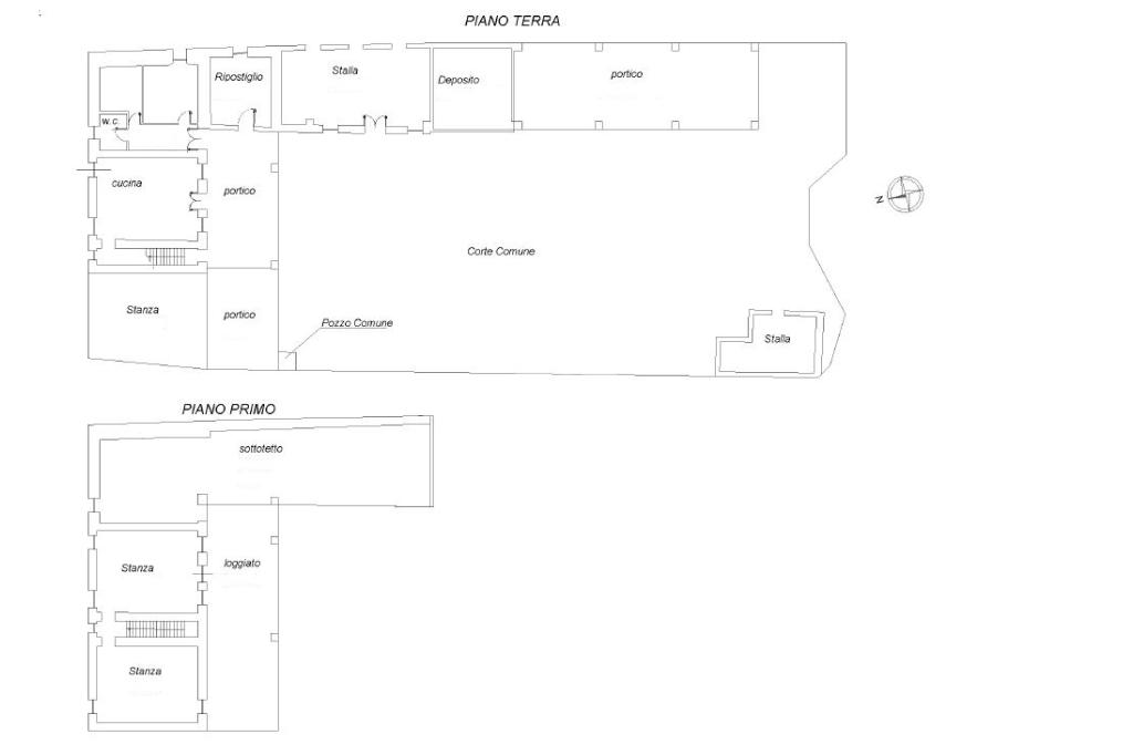
Nel comune di Cologne proponiamo in vendita porzione di cascina completamente indipendente, sviluppata su due livelli, che rappresenta un'opportunità unica per chi desidera vivere lontano dal caos cittadino.

La zona tranquilla ed isolata, a pochi minuti in macchina da tutti i principali servizi dal paese, si unisce agli ampi spazi abitativi di una costruzione dell’epoca che raccontano un’eleganza senza tempo.

Punti di forza: indipendenza, possibilità di ricavare più soluzioni immobiliari, ampi spazi, portico e loggia vivibili, tetto nuovo.

Una soluzione che unisce il fascino delle costruzioni storiche con le potenzialità di una ristrutturazione moderna.

Possibilità di acquistare a parte anche un terreno agricolo di oltre 5.000,00 mq.

Mostra tutto

Nelle vicinanze

Trasporto pubblico Trasporto pubblico
stazione di Cologne
stazione di Cologne
400 m
Scuole Scuole
Scuola Secondaria di 1° grado "A. Mazzotti" - I.C. Monte Orfano
540 m
Scuola Primaria
760 m
Supermercati Supermercati
Despar
700 m
Bar Bar
Bar
860 m
900
2,7 Km
Goblin's Pub
2,7 Km
Ristoranti Ristoranti
MEGA PIZZERIA
1,2 Km
Quadra
1,8 Km
Cappuccini
2,0 Km
Trattoria Sole (Mingardi)
2,8 Km
Genuisì
3,0 Km
Mostra tutto

Caratteristiche

Rif.:
61139077
Piano:
Su più livelli di 2
Totale piani:
2
Terrazzi:
1
Camere da letto:
5
Arredamento:
Assente
Mostra tutto
Prezzo Prezzo
€ 295.000
Rata mutuo Rata mutuo
€ 1.401 / mese
Proponi il tuo prezzoProponi il tuo prezzo

Classe Energetica

G
G
G
G
G
G
G
G
G
Anno di costruzione:
1900
Riscaldamento:
Assente

Ti interessa visionare l'immobile?

Fissa un appuntamento  Fissa un appuntamento

Richiedi informazioni

Clicca su Leggi per aprire l'informativa
* Questi campi sono obbligatori

Calcola il tuo mutuo

Semplice e senza impegno
Anticipo

( % )
Mutuo

( % )

pochi semplici passi

inserisci i tuoi dati
Questionario completato
Grazie per aver richiesto un appuntamento senza impegno con un nostro Consulente del Credito e Assicurativo.

Hai inserito correttamente tutti i dati necessari e a breve riceverai una e-mail con un link da convalidare per inviare i tuoi dati.
Affiliato
Soluzione Casa Srl
Via Ponte Fabbro, 82 25033 Cologne (BS)

Il nostro staff


  • Moreno Ferro
    Affiliato

  • Jessica Goffi
    Coordinatrice

  • Gianluca Peqini
    Collaboratore

  • Selene Ravelli
    Collaboratrice

  • Luca Sanna
    Collaboratore
Via Ponte Fabbro, 82 25033 Cologne (BS)
Zona: Coccaglio-Cologne
Mostra su mappa
Affiliato
Soluzione Casa Srl
Via Ponte Fabbro, 82 25033 Cologne (BS)

2026 Tecnocasa Franchising S.p.A. - P. IVA 08365160152 - Via Monte Bianco 60/A 20089 Rozzano (MI). Ogni agenzia ha un proprio titolare ed è autonoma. Privacy policy | Policy utilizzo | Cookie policy