Trilocale in vendita

Cologne, Via Ponte Fabbro
€ 369.000
3 locali 3 locali
153 Mq 153 Mq
2 bagni 2 bagni

Trilocale in vendita

Cologne, Via Ponte Fabbro

Descrizione annuncio

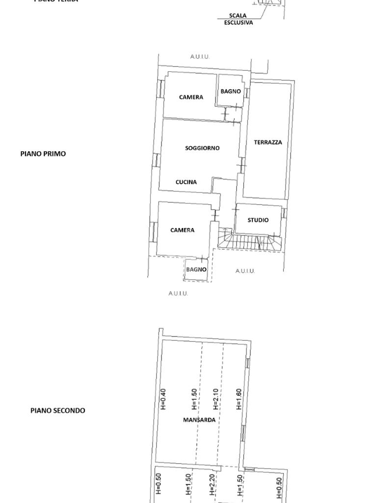
A Cologne in zona centrale del paese e comodo a tutti i principali servizi proponiamo grazioso appartamento al piano primo di nuova costruzione.

L'immobile è situato in un contesto di corte di sole 4 unità abitative.

Dall'ingresso si accede al luminoso ampio soggiorno open-space con cucina a vista e affaccio diretto sull'ampia terrazza con vista Monte Orfano.

Il disimpegno/studio conduce alla zona notte caratterizzata dalla camera matrimoniale con bagno padronale cieco, spaziosa camera da letto e bagno finestrato con doccia.

Inoltre l'immobile gode di una mansarda.

Punti di forza: nuova costruzione, centro al paese, terrazza vivibile, assenza di spese condominiali, mansarda, serramenti doppio vetro.

Disponibile da subito.

Mostra tutto

Nelle vicinanze

Trasporto pubblico Trasporto pubblico
stazione di Cologne
stazione di Cologne
400 m
Scuole Scuole
Scuola Secondaria di 1° grado "A. Mazzotti" - I.C. Monte Orfano
540 m
Scuola Primaria
760 m
Supermercati Supermercati
Despar
700 m
Bar Bar
Bar
860 m
900
2,7 Km
Goblin's Pub
2,7 Km
Ristoranti Ristoranti
MEGA PIZZERIA
1,2 Km
Quadra
1,8 Km
Cappuccini
2,0 Km
Trattoria Sole (Mingardi)
2,8 Km
Genuisì
3,0 Km
Mostra tutto

Caratteristiche

Rif.:
61148136
Piano:
1 di 1 (ultimo Piano)
Terrazzi:
1
Camere da letto:
2
Arredamento:
Assente
Condizionamento:
Autonomo
Mostra tutto
Prezzo Prezzo
€ 369.000
Rata mutuo Rata mutuo
€ 1.753 / mese
Proponi il tuo prezzoProponi il tuo prezzo

Classe Energetica

A1
A1
A1
A1
A1
A1
A1
A1
A1
EP invernale del fabbricato:
EP estiva del fabbricato:
Anno di costruzione:
2025
Riscaldamento:
Autonomo
Tipo impianto:
A pavimento
Tipo alimentazione:
Metano

Ti interessa visionare l'immobile?

Fissa un appuntamento  Fissa un appuntamento

Richiedi informazioni

Clicca su Leggi per aprire l'informativa
* Questi campi sono obbligatori

Calcola il tuo mutuo

Semplice e senza impegno
Anticipo

( % )
Mutuo

( % )

pochi semplici passi

inserisci i tuoi dati
Questionario completato
Grazie per aver richiesto un appuntamento senza impegno con un nostro Consulente del Credito e Assicurativo.

Hai inserito correttamente tutti i dati necessari e a breve riceverai una e-mail con un link da convalidare per inviare i tuoi dati.
Affiliato
Soluzione Casa Srl
Via Ponte Fabbro, 82 25033 Cologne (BS)

Il nostro staff


  • Moreno Ferro
    Affiliato

  • Jessica Goffi
    Coordinatrice

  • Gianluca Peqini
    Collaboratore

  • Selene Ravelli
    Collaboratrice

  • Luca Sanna
    Collaboratore
Via Ponte Fabbro, 82 25033 Cologne (BS)
Zona: Coccaglio-Cologne
Mostra su mappa
Affiliato
Soluzione Casa Srl
Via Ponte Fabbro, 82 25033 Cologne (BS)

2026 Tecnocasa Franchising S.p.A. - P. IVA 08365160152 - Via Monte Bianco 60/A 20089 Rozzano (MI). Ogni agenzia ha un proprio titolare ed è autonoma. Privacy policy | Policy utilizzo | Cookie policy