Trilocale in vendita

Cologne, Via Ponte Fabbro
€ 209.000
Prezzo aggiornato
3 locali 3 locali
100 Mq 100 Mq
1 bagno 1 bagno

Trilocale in vendita

Cologne, Via Ponte Fabbro

Descrizione annuncio

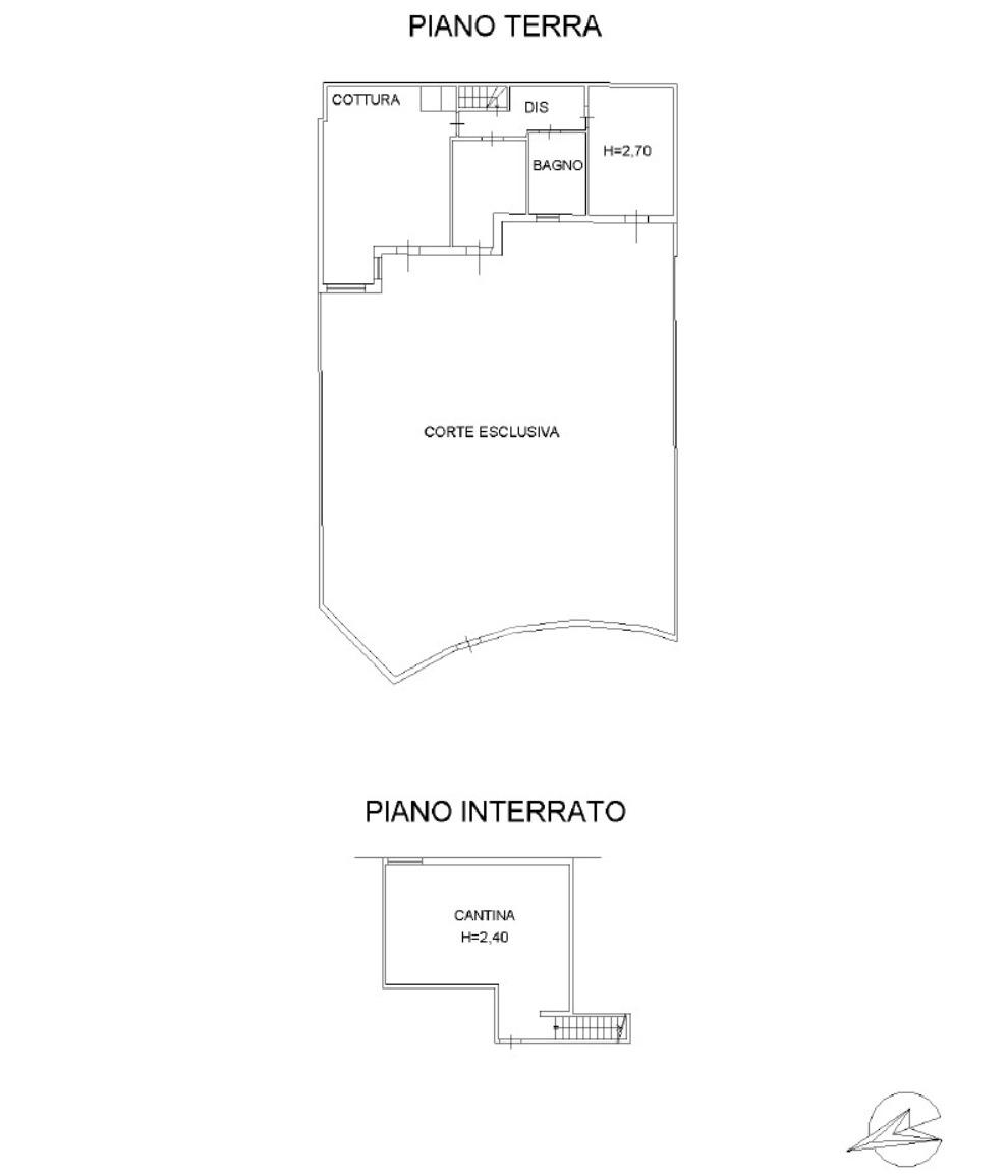
Nel cuore del comune di Cologne, proponiamo in vendita un appartamento al piano terra con giardino esclusivo , ideale per chi cerca comodità e tranquillità.

L'immobile, costruito nel 2006 e recentemente ristrutturato esternamente nel 2023, offre un ingresso indipendente che garantisce privacy e autonomia.

La proprietà si compone di tre locali: due camere da letto, un bagno e una comoda taverna perfetta per adattarsi alle diverse esigenze familiari.

Uno dei punti di forza è il giardino privato di circa 200 mq, uno spazio verde ideale per momenti di relax o per chi ama il giardinaggio.

L'appartamento è dotato di aria condizionata, assicurando comfort in ogni stagione, caldaia nuova, serramenti nuovi, panello fotovoltaico, batterie d'accumulo , impianto di climatizzazione.
Inoltre, l'intervento del Superbonus 110 ha migliorato l'efficienza energetica dell'edificio.

Completa la proprietà un comodo box auto.

Mostra tutto

Nelle vicinanze

Trasporto pubblico Trasporto pubblico
stazione di Cologne
stazione di Cologne
400 m
Scuole Scuole
Scuola Secondaria di 1° grado "A. Mazzotti" - I.C. Monte Orfano
540 m
Scuola Primaria
760 m
Supermercati Supermercati
Despar
700 m
Bar Bar
Bar
860 m
900
2,7 Km
Goblin's Pub
2,7 Km
Ristoranti Ristoranti
MEGA PIZZERIA
1,2 Km
Quadra
1,8 Km
Cappuccini
2,0 Km
Trattoria Sole (Mingardi)
2,8 Km
Genuisì
3,0 Km
Mostra tutto

Caratteristiche

Rif.:
61137783
Piano:
Terra con giardino di 2
Totale piani:
2
Box:
1
Camere da letto:
2
Arredamento:
Assente
Mostra tutto
Prezzo Prezzo
€ 209.000
Rata mutuo Rata mutuo
€ 987 / mese
Spese annue Spese annue
€ 960
Proponi il tuo prezzoProponi il tuo prezzo

Classe Energetica

A1
A1
A1
A1
A1
A1
A1
A1
A1
EP invernale del fabbricato:
EP estiva del fabbricato:
Anno di costruzione:
2006
Riscaldamento:
Autonomo
Tipo impianto:
A radiatori
Tipo alimentazione:
Metano

Prezzo ridotto di €1 (9%%)

Ti interessa visionare l'immobile?

Fissa un appuntamento  Fissa un appuntamento

Richiedi informazioni

Clicca su Leggi per aprire l'informativa
* Questi campi sono obbligatori

Calcola il tuo mutuo

Semplice e senza impegno
Anticipo

( % )
Mutuo

( % )

pochi semplici passi

inserisci i tuoi dati
Questionario completato
Grazie per aver richiesto un appuntamento senza impegno con un nostro Consulente del Credito e Assicurativo.

Hai inserito correttamente tutti i dati necessari e a breve riceverai una e-mail con un link da convalidare per inviare i tuoi dati.
Affiliato
Soluzione Casa Srl
Via Ponte Fabbro, 82 25033 Cologne (BS)

Il nostro staff


  • Moreno Ferro
    Affiliato

  • Jessica Goffi
    Coordinatrice

  • Gianluca Peqini
    Collaboratore

  • Selene Ravelli
    Collaboratrice

  • Luca Sanna
    Collaboratore
Via Ponte Fabbro, 82 25033 Cologne (BS)
Zona: Coccaglio-Cologne
Mostra su mappa
Affiliato
Soluzione Casa Srl
Via Ponte Fabbro, 82 25033 Cologne (BS)

2025 Tecnocasa Franchising S.p.A. - P. IVA 08365160152 - Via Monte Bianco 60/A 20089 Rozzano (MI). Ogni agenzia ha un proprio titolare ed è autonoma. Privacy policy | Policy utilizzo | Cookie policy